Nada que hable mejor de nuestra misión en ALFA Arquitectura que nuestros trabajos realizados.
En esta sección vamos a compilar las obras para que conozcas lo que hacemos, desde el estudio hacia la obra donde se concretan las tareas planificadas.
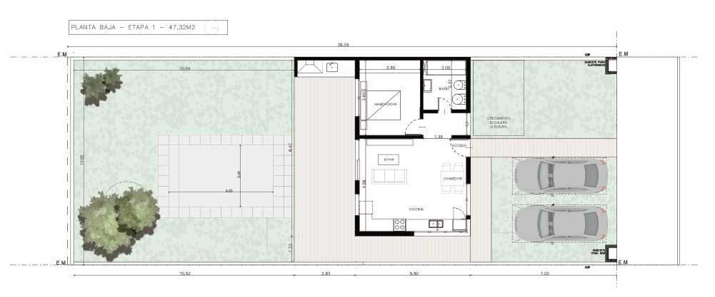
Proyecto de un modelo Procrear Aime modificado, respondiendo a las necesidades de los propietarios.
La obra constara de 2 etapas con proyecciones a futuro en el cual habrá una planta baja con totalidad espacial y una planta alta exclusiva para ser privada.
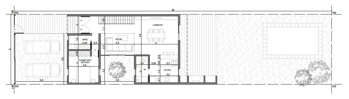
Es una vivienda Procrear modelo Alfonsina, modificada a nuestro estilo y necesidades del cliente. Se creo una tira pubica, y otra mas privada.
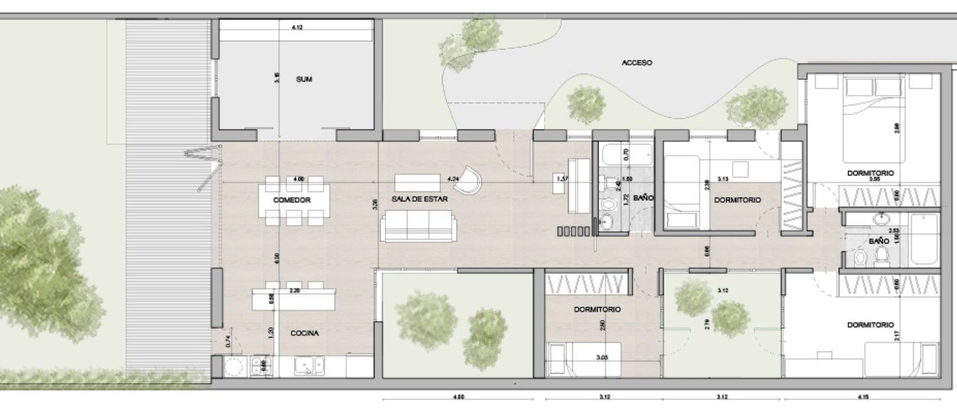
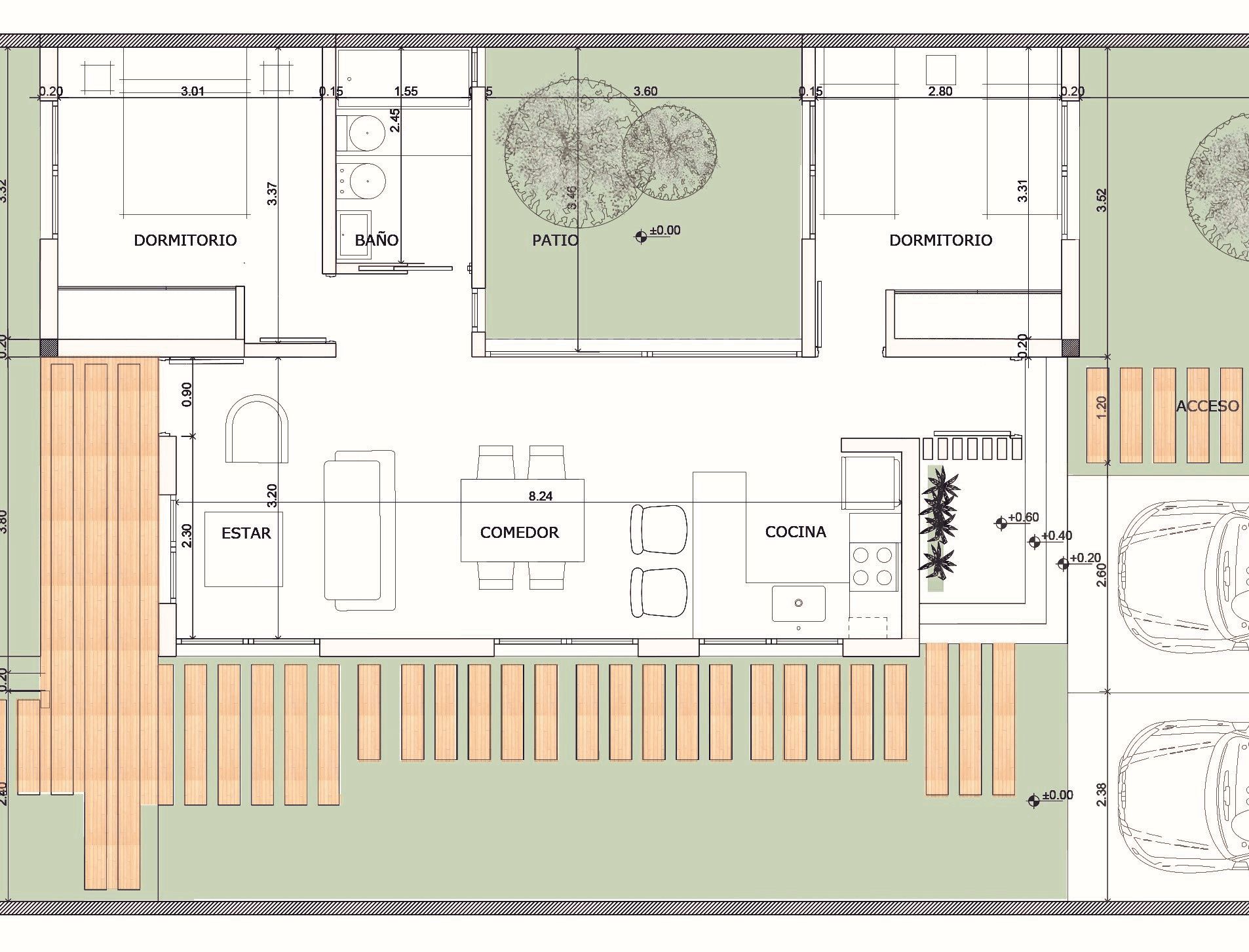
Es una vivienda Procrear modelo Costera II, se modificó a nuestro estilo y se pensó para unificar la cocina con un semicubierto al exterior.
El ingreso unico directo al espacio social diferenciado del area de las habitaciones.
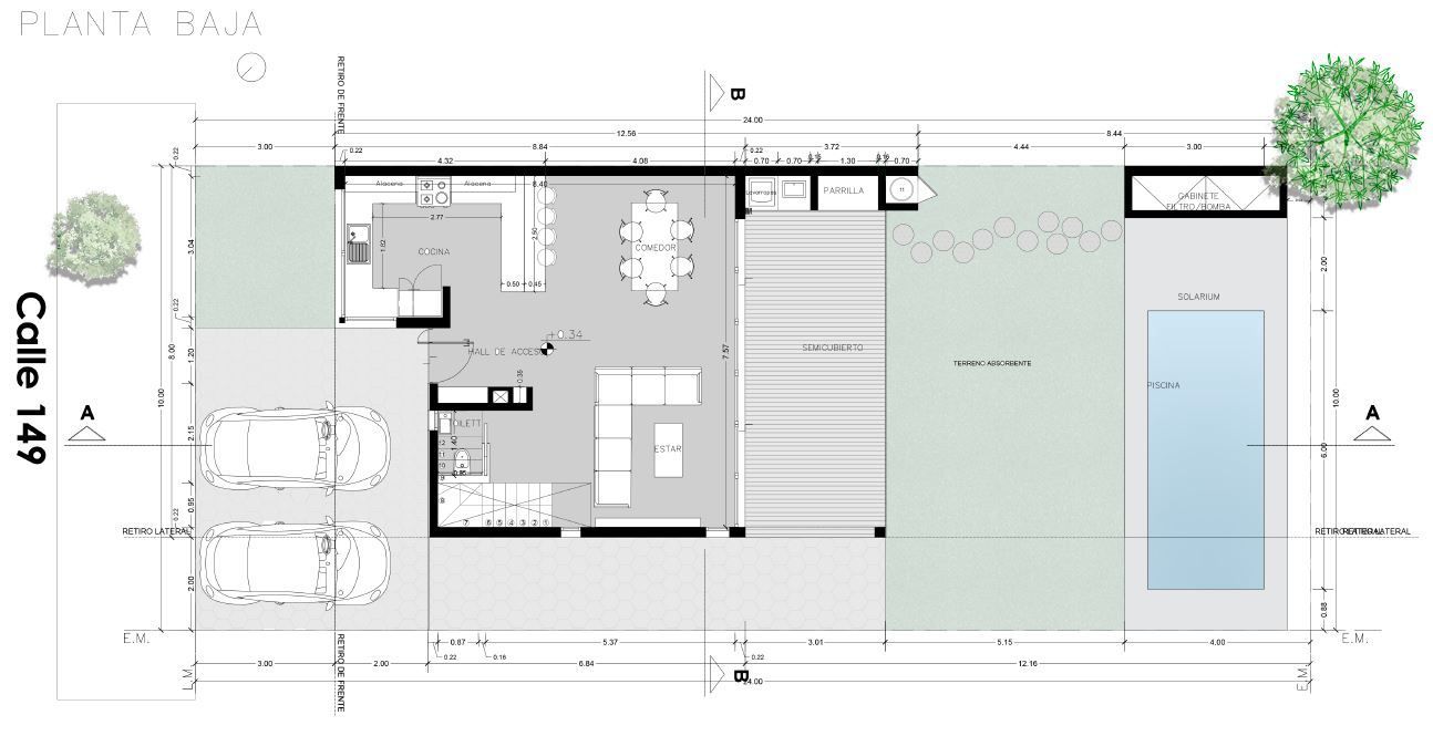
Es una vivienda Procrear modelo Juana, se modificó a nuestro estilo y se pensó para divir la parte privada de la pública. Cuenta con un gran espacio social, vinculado con el exterior.
Técnica: arqalfa.tecnica@gmail.com
Administración: arqalfa_lp@hotmail.com
RRHH: arqalfa-rh@hotmail.com
Nuevo párrafo